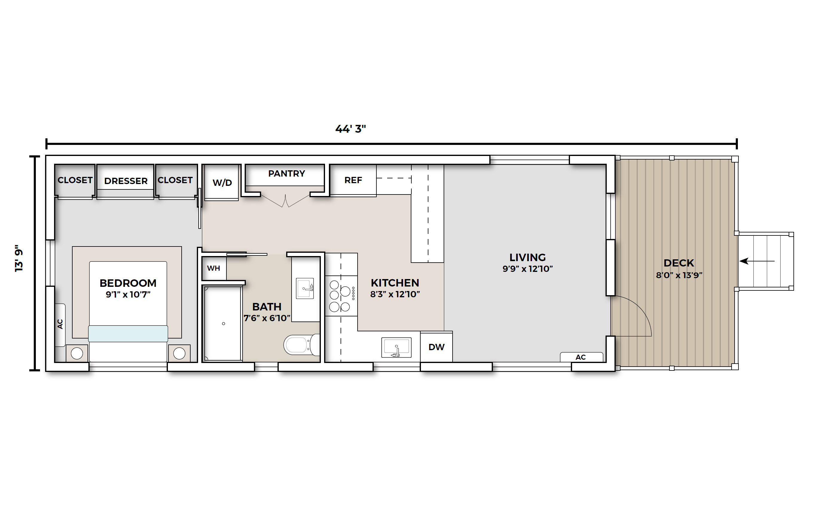
Terra Bella

499 SQ FT | 1 BED | 1 BATH

Brand new 2025 1 Bedroom, 1 Bath Resort Cottage Home, a true gem designed for comfort and modern living. This exceptional residence boasts a bright and airy open floor plan, meticulously crafted to maximize space and natural light. The contemporary bathroom features a luxurious glass-enclosed shower and an LED lighted mirror, adding a touch of elegance and functionality.

For your convenience, a stacked washer and dryer are seamlessly integrated into the unit, making everyday chores a breeze. Step outside and enjoy the inviting 8’ covered front porch, an ideal space for morning coffee, evening relaxation, or entertaining guests in style.

The heart of this home, the kitchen, is a chef’s delight, equipped with energy-efficient stainless steel appliances that blend seamlessly with the sophisticated design. Gleaming quartz counters provide ample workspace and spacious pantry, complementing the soft-close cabinets that offer both aesthetic appeal and practical storage. A deep stainless sink adds to the kitchen’s
functionality and modern flair.

©2026 Gulf Atlantic Cottages | All Rights Reserved | Privacy Policy | Accessibility | Marketing by Digital Lightbridge